So we went through a few plans when we were planning on keeping the shell of the house intact, then we discovered all the issues and decided to tear down the house. Since we decided to build a new house from scratch, this is the third plan. This is the one getting submitted to the building department this week, so this is the one that’s going to stick. Mostly. Things always come up.

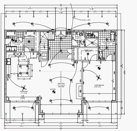
The big thing we needed to plan for was to utilize the large glass sliding doors we had already purchased before we decided to start over. The large (16 feet) one will overlook the lake from our Great Room and the two smaller (12 feet) ones will overlook the lake from the Dining Room and the Master Bedroom, with a long deck that all three will open onto.
One minor change since this drawing was done is that the water purification system needs to be on the main floor instead of underneath in the crawlspace, so it will be sharing the space with what’s labeled as our Pantry in the picture. Open concept for Dining Room, Great Room, and Kitchen with a closet right by the Front Door and a 2-Piece Bathroom. Off the Master will be a full Ensuite Bathroom with a separate tub and shower.

As you can see between the pictures of the first-floor plan and the lakeside exterior of the house there will be lots of windows for us to look out at the lake and let in lots of natural light. This will actually help keep the house warmer in the winter as the sun travels right in front of the house, but won’t overheat in the summer as at that time of year the sun travels more over the house. The change in position of the sun is very noticeable between seasons.
You may also be able to tell by the exterior that the house is planned to be one and a half stories, with the trusses of the roof exposed to give it a rustic look inside and make the Great Room feel even bigger as it will be open to the upstairs.

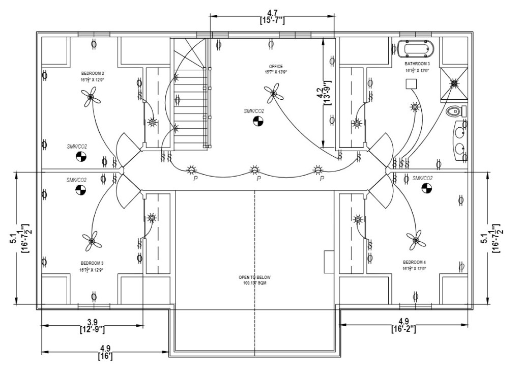
Upstairs we’ll have a loft office area which can function as a workspace or as additional entertainment space as well as three more bedrooms and another 4-piece bathroom. This does mean that the septic needs to be made a little bigger than it is currently, but on the upside, it really needed replacing anyway. And we had to fix the septic bed anyway, as some of you may remember from a previous post the previous owners decided to build a garage on it.
So this plan will fit on the lot with all the proper setbacks and spacing between septic, well, etc., and leave a lot of the lot not covered in buildings. Thanks to the small dip we have to go down to the water the waves won’t get anywhere near the house, but thanks to our unobstructed view we’ll also be able to see out over the lake all the time. Unless it’s really foggy, or really dark.
That’s it for this week. Thank you so much for following along on our journey and please follow us on Facebook. See you next week!